021 524 601
060 524 6010
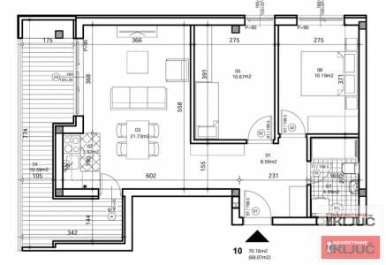
Maksima Gorkog 2

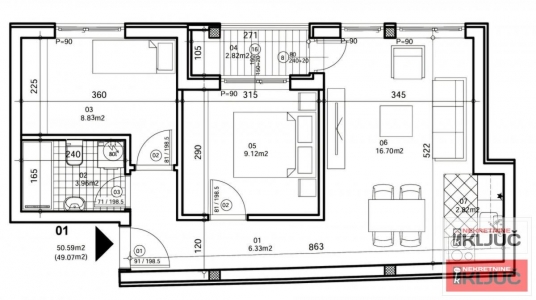
589.600 €
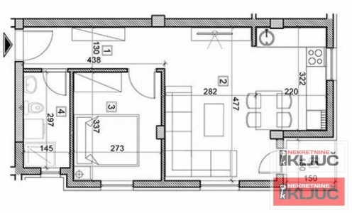
125.900 €
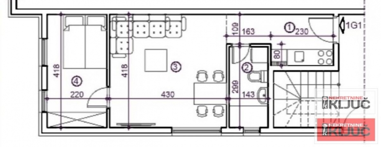
78.590 €