021 524 601
060 524 6010
Maksima Gorkog 2

Novi Sad, Železnička stanica (NS)
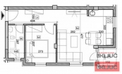
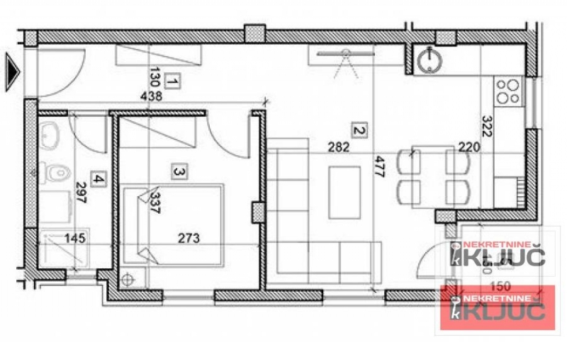
Prodaje se 2. 0 stan u NOVOM SADU, SALAJKA površine 42m2. Stan je u izgradnji. Cena stana sa pdv. Renomiran investitor. Blizina svih sadržaja. Odlična komunikacija sa svim delovima grada. Nalazi se nadomak Železničke stanice u mirnoj ulici. Stan zavređuje pažnju. Mogučnost kupovine putem stambenog kredita. Pozovite da pogledate.
| Šifra oglasa | 4334 |
| Tip | Stan |
| Ukupna cena | 131.500 € |
| Kvadratura | 43 m2 |
| Broj soba | 2 |
| Broj kupatila | 1 |
| Usluga | Prodaja |
| Sprat | 2 |
| Terasa | Da |
| Grejanje | Etažno |
021 524 601
060 524 6010
060 524 6011