021 524 601
060 524 6010
Maksima Gorkog 2

Novi Sad, Somborski bulevar
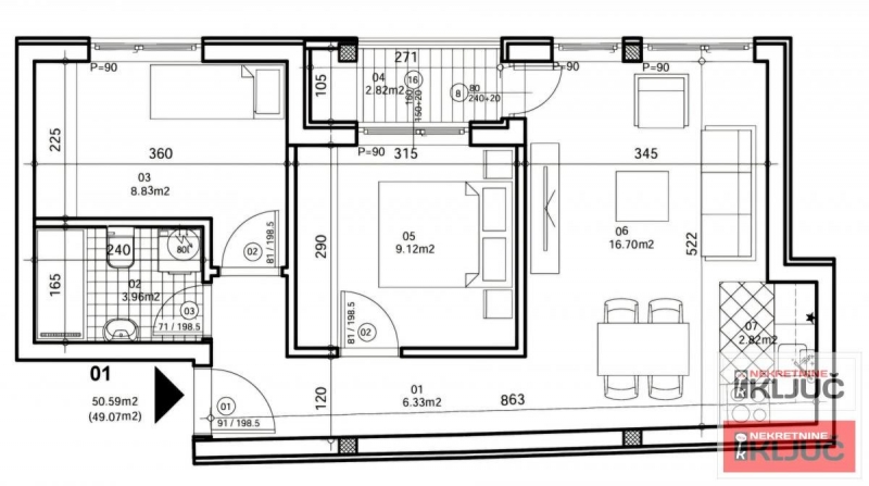
Prodaje se 2. 5 stan u NOVOM SADU, kod SOMBORSKOG BULEVARA površine 51m2. Stan je u izgradnji. Cena stana sa pdv. Mogučnost kupovine putem stambenog kredita. Nalazi se u mirnoj ulici nadomak Somborskog bulevara. Odlično je povezan sa Limanom 4 kao i ostalim delovima grada. Svi potrebni sadržaji su u blizini stana, škola, vrtić, marketi kao i ostali sadržaji. Stan je izuzetno funkcionalan i iskorišten. Zavređuje pažnju. Pozovite da pogledate.
| Šifra oglasa | 4285 |
| Tip | Stan |
| Ukupna cena | 125.900 € |
| Kvadratura | 51 m2 |
| Broj soba | 2.5 |
| Broj kupatila | 1 |
| Usluga | Prodaja |
| Sprat | prizemlje |
| Terasa | Da |
| Grejanje | Etažno |
021 524 601
060 524 6010
060 524 6011