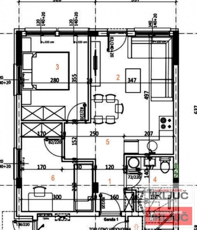
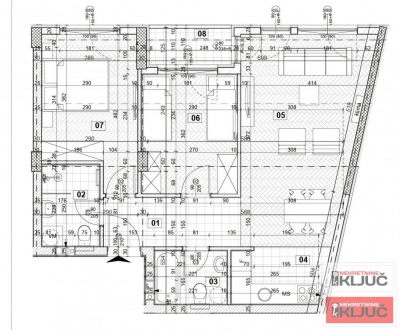
021 524 601
060 524 6010
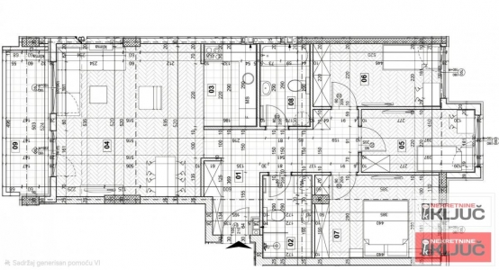
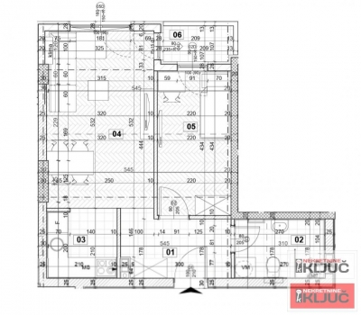
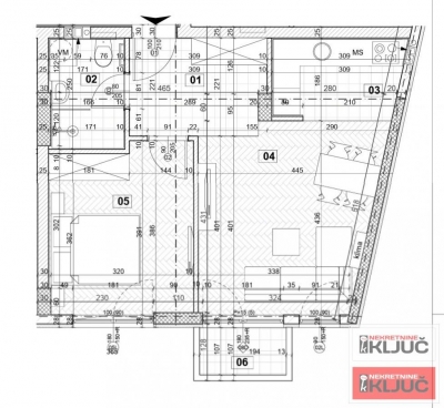
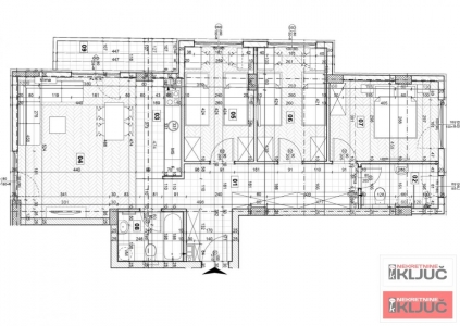
Maksima Gorkog 2

648.900 €