021 524 601
060 524 6010
Maksima Gorkog 2

Novi Sad, Somborski bulevar
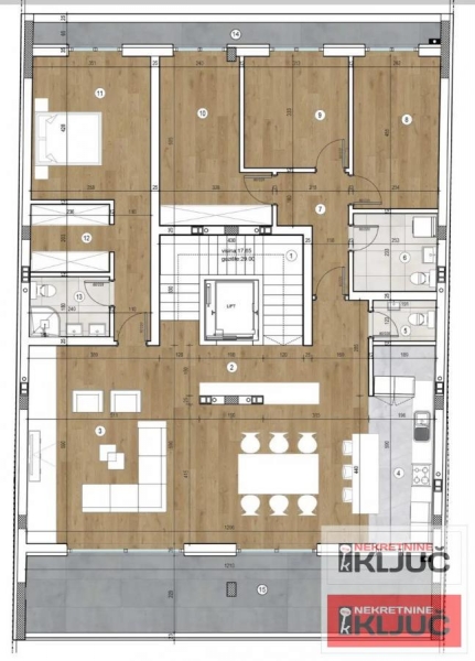
Prodaje se 5. 0 stan u NOVOM SADU, SOMBORSKI BULEVAR površine 172m2 + krovna terasa oko 200m2. RETKO NA TRŽIŠTU. Lift ide direktno u stan. Izlaz na krovnu terasu otvorenog pogleda. Visoko kvalitetan stan, vrhunskog kvaliteta i opreme. Dvostrano orijentisan, sklonjen sa Buleavara. Blizina svih potrebni sadržaja za život, Škola, vrtić, megamarketi kao i ostali sadržaji. Odlično je povezan sa ostalim delovima grada. Mogučnost kupovine putem kredita. Poseduje garažno mesto u suterenu zgrade. Zavređuje pažnju. Pozovite da pogledate ovaj stan.
| Šifra oglasa | 5158 |
| Tip | Stan |
| Ukupna cena | 648.900 € |
| Kvadratura | 172 m2 |
| Broj soba | 5 |
| Broj kupatila | 1 |
| Usluga | Prodaja |
| Garaža | 1 |
| Sprat | 3 |
| Terasa | Da |
| Grejanje | Gas |
021 524 601
060 524 6010
060 524 6011