021 524 601
060 524 6010
Maksima Gorkog 2

Novi Sad, Detelinara
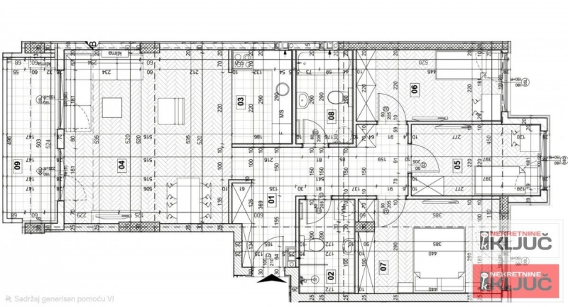
Prodaje se 4. 0 stan u NOVOM SADU, DETELINARA površine 92m2. Stan je u izgradnji. Cena stana sa pdv. Izuzetna funkcionalnost i raspored, dva mokra čvora. Moderan koncept stanovanja. Svi potrebni sadržaji su u blizini stana, škola, vrtić, pijaca, megamartketi kao i ostali sadržaji. Stan je okružen parking prostorom. Odlično komunicira sa ostalim delovima grada. Visok kvalitet gradnje i opreme. Korišćeni kvalitetni materijali i oprema. Stan je moguče kupiti i putem stambenog kredita. Zavređuje pažnju. Pozovite da pogledate.
| Šifra oglasa | 5182 |
| Tip | Stan |
| Ukupna cena | 253.330 € |
| Kvadratura | 92 m2 |
| Broj soba | 4 |
| Broj kupatila | 2 |
| Usluga | Prodaja |
| Godina izgradnje | 2026 |
| Sprat | 1 |
| Terasa | Da |
| Grejanje | Centralno |
021 524 601
060 524 6010
060 524 6011