021 524 601
060 524 6010
Maksima Gorkog 2

Novi Sad, Novo Naselje
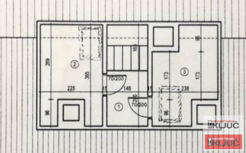
Prodaje se uknjižen 3 soban stan u Novom Sadu, NOVO NASELJE. Stan je Duplex. Komplet renoviran. Ima ostavu, biciklanu i šupu. u ceni. Prodaje se sa nameštajem po meri. Blizina svih sadržaja za život, Škola, Vrtić, pijaca, marketi kao i ostali sadržaji. Odlično je povezan sa ostalim delovima grada. Zavređuje pažnju.. Vredi pogledati
| Šifra oglasa | 1888 |
| Tip | Stan |
| Ukupna cena | 147.800 € |
| Kvadratura | 79 m2 |
| Broj soba | 3 |
| Broj kupatila | 1 |
| Usluga | Prodaja |
| Sprat | 4 |
| Terasa | Da |
| Grejanje | Centralno |
021 524 601
060 524 6010
060 524 6011