021 524 601
060 524 6010
Maksima Gorkog 2

Novi Sad, Novo Naselje
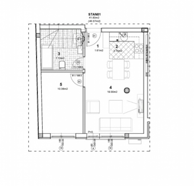
Prodaje se 2 stan u Novom Sadu, NOVO NASELJE, površine 41 m² Sta se nalazi na visokom prizemlju. Cena sa PDV. Kvalitetna zgrada na Izuzetnoj lokaciji , a u blizini svih sadržaja za život. Mogućnost kupovine putem kredita. U cenu je uračunata i agencijska provizija, Pozovite i pogeldajte ovaj stan.
| Šifra oglasa | 980 |
| Tip | Stan |
| Ukupna cena | 113.690 € |
| Kvadratura | 41 m2 |
| Broj soba | 2 |
| Broj kupatila | 1 |
| Usluga | Prodaja |
| Sprat | prizemlje |
| Grejanje | Etažno |
021 524 601
060 524 6010
060 524 6011