021 524 601
060 524 6010
Maksima Gorkog 2

Novi Sad, Centar
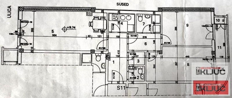
Prodaje se 3. 0 stan u NOVOM SADU, CENTAR površine 78m2. Nalazi se na odličnoj lokaciji između SPENSA i FUTOŠKE PIJACE. Odličan raspored prostorija, dva mokra čvora, dve ostave, dvostrana orijentacija. Novija gradnja. Ne treba puno trošiti reči o lokaciji, svi potrebni sadržaji nadomak stana. Vrhunska povezanost sa ostalim delovima grada. Uredno uknjižen na vlasnika. Pogodan i za poslovnu namenu. Idealan za porodicu. Retko na tržištu se pojavljuje ovakva nekretnina. Zavređuje pažnju. Cena stana je sa agencijskom provizijom. Pozovite da pogledate
| Šifra oglasa | 5710 |
| Tip | Stan |
| Ukupna cena | 257.500 € |
| Kvadratura | 78 m2 |
| Broj soba | 3 |
| Broj kupatila | 2 |
| Usluga | Prodaja |
| Sprat | 3 |
| Terasa | Da |
| Grejanje | Centralno |
021 524 601
060 524 6010
060 524 6011