021 524 601
060 524 6010
Maksima Gorkog 2

Novi Sad, Nova detelinara
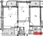
Prodaje se 3. 0 stan u NOVOM SADU, NOVA DETELINARA površine 63m2. Stan se nalazi u srcu lokacije okružen svim sadržajima za život, škola, vrtić, pijaca, mnogi marketi kao i prodavnice, restorani, kafići. Ovaj stan funkcioniše iz predsoblja u sve prostorije, poseduje dve terase, dva mokra čvora, vrhunskog je rasporeda, posebno ostava iz kuhinje koja ima ventilaciju. Ova nekretnina će vas osvojiti rasporedom i funkcionalnošću. Zgrada je relativno novije gradnje i odlično je povezana sa ostalim delovima grada. Cena ovog funkcionalnog stana je sa agencijskom provizijom. Zavređuje pažnju. Pozovite i postanite vlasnik ovog stana.
| Šifra oglasa | 5460 |
| Tip | Stan |
| Ukupna cena | 169.950 € |
| Kvadratura | 63 m2 |
| Broj soba | 3 |
| Broj kupatila | 1 |
| Usluga | Prodaja |
| Sprat | 1 |
| Terasa | Da |
| Grejanje | Centralno |
021 524 601
060 524 6010
060 524 6011