021 524 601
060 524 6010
Maksima Gorkog 2

Novi Sad, Telep
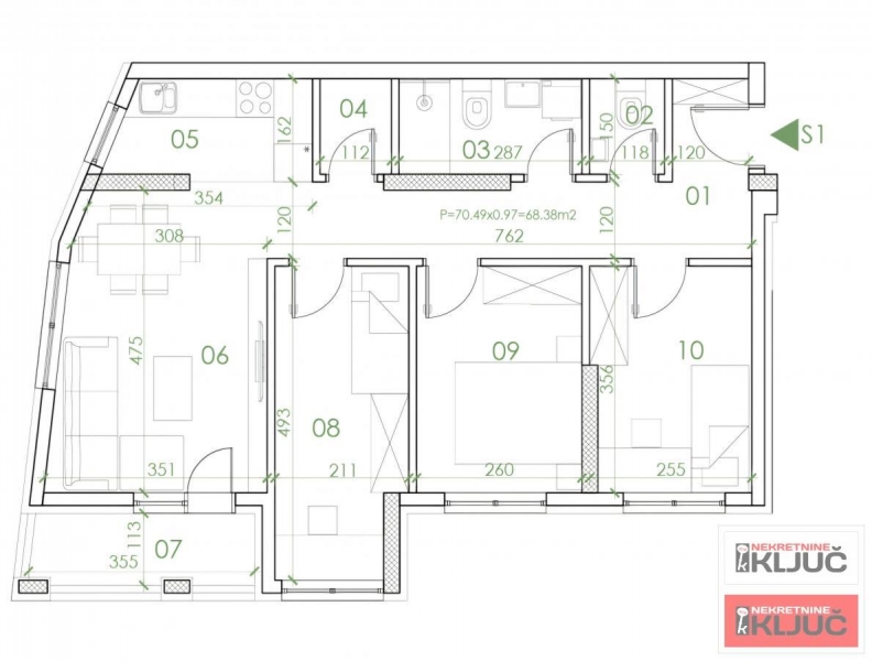
Prodaje se 3. 5 stan u NOVOM SADU, TELEP površine 69 m2. Stan je u izgradnji. Cena stana je sa pdv. Stan se nalazi u kvalitetnom objektu koji je smešten u mirnoj ulici nadomak Limana 4. Odlična komunikacija sa glavnom saobraćajnicom Heroja Pinkija a i sa ostalim delovima grada. Zgrada vrhunskog kvaliteta i opreme. Potrebni sadržaji su u blizini stana. Ovaj stan je odličnog rasporeda, izuzetno je funkcionalan, poseduje dva mokra čvora, ostavu i idealan je porodicu. Mogučnost kupovine i parking mesta uz stan. Cena stana je sa agencijskom provizijom. Pozovite i postanite vlasnik ovog odličnog stana.
| Šifra oglasa | 5426 |
| Tip | Stan |
| Ukupna cena | 179.600 € |
| Kvadratura | 69 m2 |
| Broj soba | 3.5 |
| Broj kupatila | 2 |
| Usluga | Prodaja |
| Sprat | prizemlje |
| Terasa | Da |
| Grejanje | Etažno |
021 524 601
060 524 6010
060 524 6011