021 524 601
060 524 6010
Maksima Gorkog 2

Novi Sad, Telep
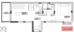
Prodaje se 2. 0 stan u NOVOM SADU, TELEP površine 43m2. Stan je u izgradnji. Cena stana je sa pdv. Dvostrano orijentisan, izuzetno funkcionalan. Nalazi se u mirnoj ulici nadomak glavne saobraćajnice Heroja Pinkija. Odlična povezanost sa Limanima kao i sa ostalim delovima grada. Objekat vrhunskog kvaliteta i opreme. Blizina svih potrebnih sadržaja za život. Ulica sklonjena od buke i saobračaja. Cena stana je sa agencijskom uslugom. Pozovite i postanite vlasnik ove nekretnine.
| Šifra oglasa | 5390 |
| Tip | Stan |
| Ukupna cena | 121.800 € |
| Kvadratura | 43 m2 |
| Broj soba | 2 |
| Broj kupatila | 1 |
| Usluga | Prodaja |
| Sprat | 2 |
| Terasa | Da |
| Grejanje | Etažno |
021 524 601
060 524 6010
060 524 6011