021 524 601
060 524 6010
Maksima Gorkog 2

Novi Sad, Centar
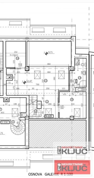
Prodaje se 5. 0 duplex stan u NOVOM SADU, CENTAR površine 143m2. U pitanju je moderan dupleks u strogom centru grada. Komplet je renoviran i izuzetno je funkcionalan. Na donjoj etaži se nalazi moderna kuhinja sa prirodnom ventilacijom, dnevni boravak, tri spavaće sobe i jedno kupatilo. Na gornjoj etaži je velika galerija, biblioteka, spavaća soba sa kupatilom. Pri renoviranju su korišteni najkvalitetniji materijali i vodilo se računa o svakom detalju. Uz stan se može kupiti i garaža 12m2 u suterenu zgrade. Stan je moguče kupiti i putem stambenog kredita. Svi potrebni sadržaji su u blizini stana. Odlično je povezan sa svim delovima grada. Stan zavređuje pažnju. Postanite vlasnik ovog jedinstvenog stana.
| Šifra oglasa | 5347 |
| Tip | Stan |
| Ukupna cena | 383.000 € |
| Kvadratura | 143 m2 |
| Broj soba | 5 |
| Broj kupatila | 2 |
| Parking | Da |
| Usluga | Prodaja |
| Godina izgradnje | 2000 |
| Sprat | 3 |
| Grejanje | Centralno |
021 524 601
060 524 6010
060 524 6011