021 524 601
060 524 6010
Maksima Gorkog 2

Novi Sad, Sremska Kamenica
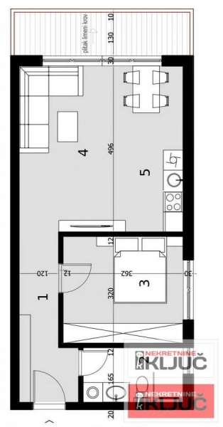
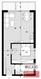
Prodaje se 2. 0 stan u SREMSKOJ KAMENICI, TATARSKO BRDO površine 48m2. Stan je u izgradnji. Cena stana sa pdv. U pitanju je moderna vila sa nekoliko stambenih jedinica. U gradnji se koriste samo visokokvalitetni materijali, aluminijumska stolarija najnovije generacije, energetski efikasni fasadni sistemi, termo i hidro izolacija premium klase, kvalitetne keramike i parketi, podno grejanje u svim prostorijama. Kompleks je potpuno digitalizovan, sa smart-home sistemima, daljinsko upravljanje grejanjem i hlađenjem, pametno osvetljenje, alarm i video nadzor, kontrola potrošnje energije. Cena uključuje agencijsku proviziju.
| Šifra oglasa | 5333 |
| Tip | Stan |
| Ukupna cena | 135.950 € |
| Kvadratura | 48 m2 |
| Broj soba | 2 |
| Broj kupatila | 1 |
| Parking | Da |
| Usluga | Prodaja |
| Sprat | prizemlje |
| Terasa | Da |
| Grejanje | Etažno |
021 524 601
060 524 6010
060 524 6011