021 524 601
060 524 6010
Maksima Gorkog 2

Novi Sad, Klisa
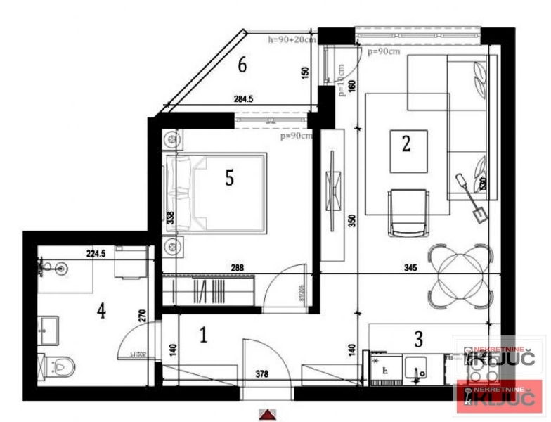
Prodaje se 2. 0 stan u NOVOM SADU, KLISA površine 44m2. Stan je u izgradnji. Cena stana sa pdv. Odlična lokacija, svi potrebni sadržaji su nadomak stana. Odličan kvalitet gradnje i opreme. Vrhunska povezanost sa ostalim delovima grada. Stan zavređuje pažnju. Pozovite da pogledate.
| Šifra oglasa | 5227 |
| Tip | Stan |
| Ukupna cena | 98.800 € |
| Kvadratura | 44 m2 |
| Broj soba | 2 |
| Broj kupatila | 1 |
| Usluga | Prodaja |
| Sprat | 1 |
| Terasa | Da |
| Grejanje | Etažno |
021 524 601
060 524 6010
060 524 6011