021 524 601
060 524 6010
Maksima Gorkog 2

Novi Sad, Adice
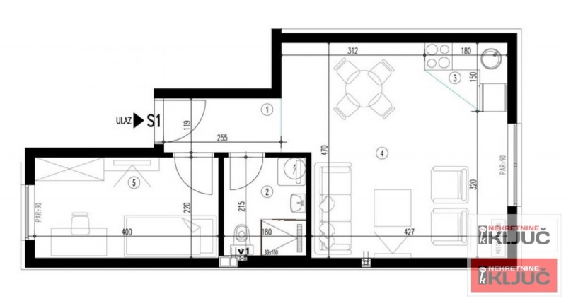
Prodaje se 1. 5 stan u NOVOM SADU, ADICE površine 36m2. Stan je u izgradnji. Cena stana je sa pdv. Nalazi se u kvalitetnoj novogradnji, odličnog kvaliteta i opreme. Blizina glavne saobračajnice, odlično povezan sa ulicom Branka Čopića. Mirna ulica bez buke i saobraćaja. Zavređuje pažnju. Pozovite da pogledate.
| Šifra oglasa | 5172 |
| Tip | Stan |
| Ukupna cena | 81.600 € |
| Kvadratura | 36 m2 |
| Broj soba | 1.5 |
| Broj kupatila | 1 |
| Usluga | Prodaja |
| Sprat | prizemlje |
| Grejanje | Etažno |
021 524 601
060 524 6010
060 524 6011