021 524 601
060 524 6010
Maksima Gorkog 2

Novi Sad, Telep
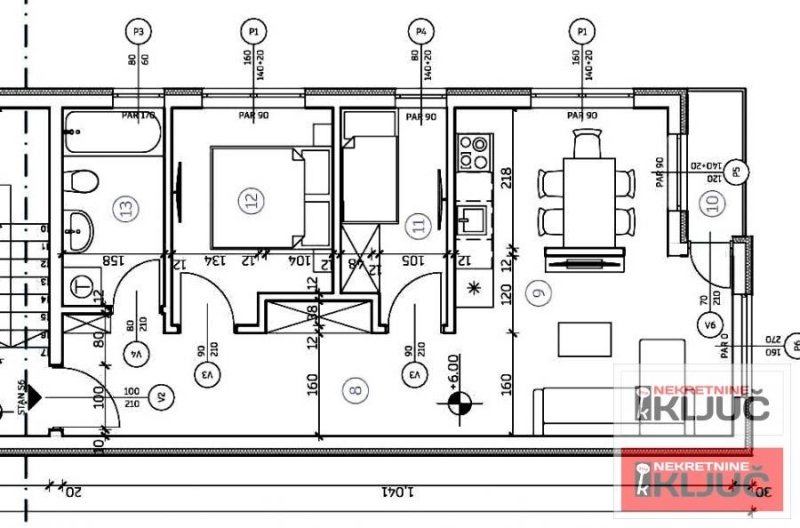
Prodaje se 2. 5 stan u NOVOM SADU, TELEP površine 49m2 + terasa. Stanu pripada dodatno i krovna terasa iznad stana kao i parking mesto.. Nalazi se u Lux Vili sa svega nekoliko stambenih jedinica. Vrhunski kvalitet gradnje i opreme. Odlično je povezana sa glavnom saobračajnicom Heroja Pinkija kao i sa ostalim delovima grada. Izuzetno funkcionalan. Stanu pripada krovna terasa duž stana. Miran koncept stanovanja. Vila sa svega nekoliko stambenih jedinica. Zavređuje pažnju. Pozovite da pogledate.
| Šifra oglasa | 4318 |
| Tip | Stan |
| Ukupna cena | 155.000 € |
| Kvadratura | 49 m2 |
| Broj soba | 2.5 |
| Broj kupatila | 1 |
| Parking | Da |
| Usluga | Prodaja |
| Godina izgradnje | 2025 |
| Sprat | 2 |
| Terasa | Da |
| Grejanje | Etažno |
021 524 601
060 524 6010
060 524 6011