021 524 601
060 524 6010
Maksima Gorkog 2

Novi Sad, Telep
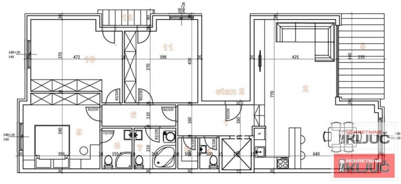
Prodaje se 4 soban stan u NOVOM SADU, TELEP površine 116m2. Stan se nalazi u modernoj Vili sa 3 stana. Uz stan se dobija garažno i parking mesto. Cena stana sa pdv. Mogučnost kupovine putem stambenog kredita. Nalazi se u blizini svih sadržaja portebnih za kvalitetan porodičan život, Škola, Vrtić marketi kao i ostali sadržaji. Odlično je povezan sa ostalim delovima grada. Visok kvalitet gradnje i opreme, iz lifta se ulazi kako u stan tako i u garažni prostor. Stan je funkcionalan sa dva morka čvora i dve terase, open space portali. Koriščćeni vrhunski materijali i oprema. Cena stana je sa agencijskom uslugom. Pozovite da pogledate.
| Šifra oglasa | 3990 |
| Tip | Stan |
| Ukupna cena | 360.000 € |
| Kvadratura | 116 m2 |
| Broj soba | 4 |
| Broj kupatila | 2 |
| Usluga | Prodaja |
| Sprat | 1 |
| Terasa | Da |
| Grejanje | Etažno |
021 524 601
060 524 6010
060 524 6011