021 524 601
060 524 6010
Maksima Gorkog 2

Novi Sad, Liman 4
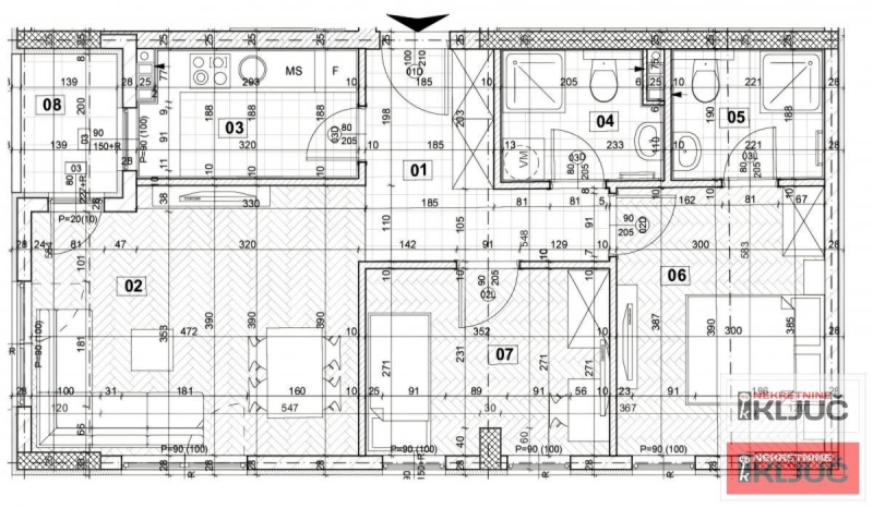
Prodaje se 3. 0 stan u NOVOM SADU, kod LIMANA 4 površine 63m2. Stan je u izgradnji. Cena stana sa pdv. Renomiran investitor. Odlična lokacija u blizini svih sadržaja za život. Vrhunski kvalitet gradnje i opreme. Povezan sa sa Limanom 4 kao i ostalim delovima grada. Zavređuje pažnju. Pozovite da pogledate.
| Šifra oglasa | 3971 |
| Tip | Stan |
| Ukupna cena | 173.000 € |
| Kvadratura | 63 m2 |
| Broj soba | 3 |
| Broj kupatila | 1 |
| Usluga | Prodaja |
| Sprat | prizemlje |
| Terasa | Da |
| Grejanje | Etažno |
021 524 601
060 524 6010
060 524 6011