021 524 601
060 524 6010
Maksima Gorkog 2

Novi Sad, Telep
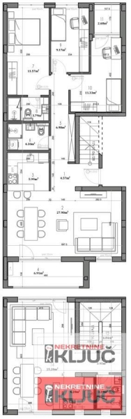
Prodaje se 5 stan u NOVOM SADU, TELEP površine 137m2. Stan je Duplex u izgradnji. . Odličan raspored prostorija. Tri mokra čvora, dva odvojena boravka, dve terase. Mogućnost kupovine putem stambenog kredita. Dva mokra čvora, dvostrano orijentisan. Vrhunski kvalitet gradnje i opreme. Svi potrebni sadržaji su u blizini, Škola, Vrtić, marketi kao i ostali sadržaji. Mogućnost kupovine i garaže uz stan kao i parking mesta. Stan zavređuje pažnju. Pozovite da pogledate.
| Šifra oglasa | 3932 |
| Tip | Stan |
| Ukupna cena | 309.500 € |
| Kvadratura | 137 m2 |
| Broj soba | 5 |
| Broj kupatila | 3 |
| Usluga | Prodaja |
| Sprat | 2 |
| Terasa | Da |
| Grejanje | Etažno |
021 524 601
060 524 6010
060 524 6011