021 524 601
060 524 6010
Maksima Gorkog 2

Novi Sad, Telep
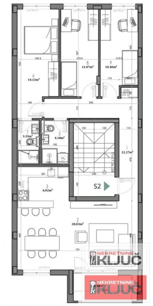
Prodaje se 4 stan u NOVOM SADU, TELEP površine 93m2. Stan je pred useljenjem. . Odličan raspored prostorija. Mogućnost kupovine putem stambenog kredita. Dva mokra čvora, dvostrano orijentisan. Vrhunski kvalitet gradnje i opreme. Svi potrebni sadržaji su u blizini, Škola, Vrtić, marketi kao i ostali sadržaji. Mogućnost kupovine i garaže uz stan kao i parking mesta 8. 000e. Stan zavređuje pažnju. Pozovite da pogledate. Pametna kuca, Urbana vila, master soba sa kupatilom. Podno grejanje na toplotne pumpe. Izuzetan stan.
| Šifra oglasa | 3930 |
| Tip | Stan |
| Ukupna cena | 218.700 € |
| Kvadratura | 93 m2 |
| Broj soba | 4 |
| Broj kupatila | 2 |
| Usluga | Prodaja |
| Sprat | 1 |
| Terasa | Da |
| Grejanje | Etažno |
021 524 601
060 524 6010
060 524 6011