021 524 601
060 524 6010
Maksima Gorkog 2

Novi Sad, Adice
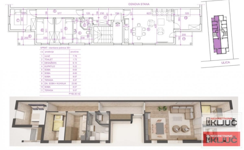
Na prodaju je funkcionalan porodični stan u izgradnji, u naselju Adice, Novi Sad. Stan se nalazi na prvom spratu zgrade od ukupno dva sprata, što ga čini praktičnim i pogodnim za svakodnevni život.
Površina stana iznosi 82 m², a struktura je petosoban, što pruža dovoljno prostora za udoban porodični raspored. Stan raspolaže sa 2 kupatila, što dodatno doprinosi komforu i funkcionalnosti prostora.
Objekat je smešten u mirnoj ulici, a istovremeno je dobro povezan sa glavnim saobraćajnicama, što omogućava lak i brz pristup svim važnim delovima grada. Stan je izuzetno funkcionalan i predstavlja odličan izbor za porodično stanovanje.
Cena stana je sa PDV-om. Ova nekretnina zavređuje pažnju, pa vas pozivamo da nas kontaktirate i zakažete gledanje.
Pozovite da pogledate
| Šifra oglasa | 3920 |
| Tip | Stan |
| Ukupna cena | 145.500 € |
| Kvadratura | 82 m2 |
| Broj soba | 5 |
| Broj kupatila | 2 |
| Usluga | Prodaja |
| Sprat | 1 |
| Terasa | Da |
| Grejanje | Etažno |
021 524 601
060 524 6010
060 524 6011