021 524 601
060 524 6010
Maksima Gorkog 2

Novi Sad, Adice
U ponudi je stan u izgradnji u Novom Sadu, u naselju Adice. Nekretnina se nalazi u mirnoj ulici, sa dobrom povezanošću prema glavnim saobraćajnicama, što obezbeđuje praktičan pristup svim važnim sadržajima grada.
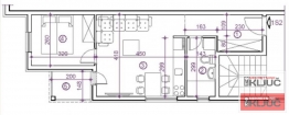
Stan je dvosoban, strukture 2. 0, površine 44 m², i nalazi se na drugom spratu od ukupno dva. U stanu je predviđeno jedno kupatilo. Cena je sa PDV-om.
Ova nekretnina predstavlja dobru priliku za kupovinu stana u fazi izgradnje, a zbog svoje lokacije i karakteristika svakako zavređuje pažnju. Pozovite da pogledate.
| Šifra oglasa | 3919 |
| Tip | Stan |
| Ukupna cena | 88.400 € |
| Kvadratura | 44 m2 |
| Broj soba | 2 |
| Broj kupatila | 1 |
| Usluga | Prodaja |
| Sprat | 2 |
| Terasa | Da |
| Grejanje | Podno |
021 524 601
060 524 6010
060 524 6011