021 524 601
060 524 6010
Maksima Gorkog 2

Novi Sad, Salajka
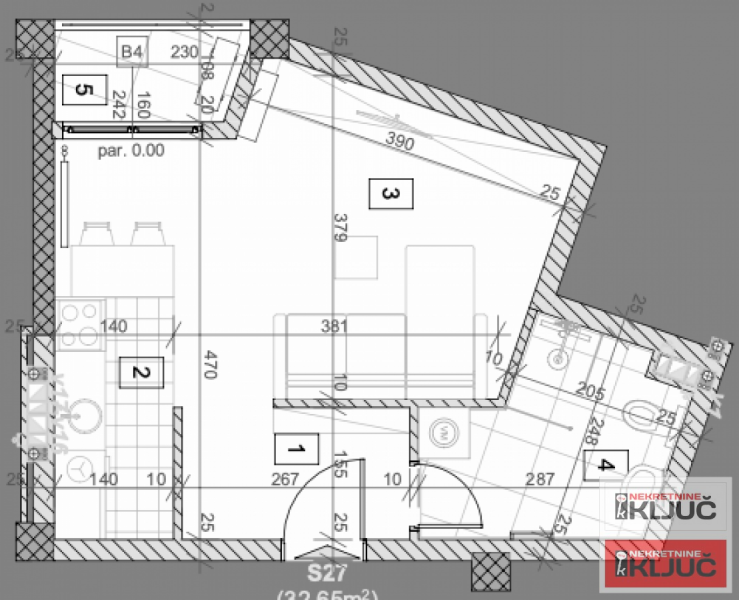
Prodaje se 1 soban stan u NOVOM SADU, SALAJKA površine 33m2. Stan je u izgradnji. Cena stana sa pdv. Izuzetna funkcionalnost. Kvalitetna novogradnja u mirnoj ulici nadomak svih potrebnih sadržaja. Odlično je povezan sa glavnim saobraćajnicama kao i ostalim delovima grada. Korišćeni vrhunski materijali i oprema. Stan zavređuje pažnju. Pozovite da pogledate.
| Šifra oglasa | 3889 |
| Tip | Stan |
| Ukupna cena | 92.500 € |
| Kvadratura | 33 m2 |
| Broj soba | 1 |
| Broj kupatila | 1 |
| Usluga | Prodaja |
| Sprat | 2 |
| Terasa | Da |
| Grejanje | Etažno |
021 524 601
060 524 6010
060 524 6011