021 524 601
060 524 6010
Maksima Gorkog 2

Novi Sad, Telep
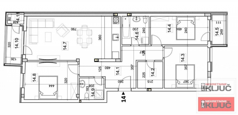
Prodaje se 4 stan u NOVOM SADU, TELEP površine 100m2. Stan je u izgradnji. Cena stana sa pdv. Dvostrano orijentisan, dve terase. Vrhunski kvalitet gradnje i opreme. Odlična lokacija u blizini svih potrebnih sadržaja za život. Komunikacija sa ostalim delovima grada. Porodičan stan koji zavređuje pažnju. Pozovite da pogledate,
| Šifra oglasa | 3872 |
| Tip | Stan |
| Ukupna cena | 247.500 € |
| Kvadratura | 100 m2 |
| Broj soba | 4 |
| Broj kupatila | 2 |
| Usluga | Prodaja |
| Sprat | 3 |
| Terasa | Da |
| Grejanje | Etažno |
021 524 601
060 524 6010
060 524 6011