021 524 601
060 524 6010
Maksima Gorkog 2

Novi Sad, Sremska Kamenica
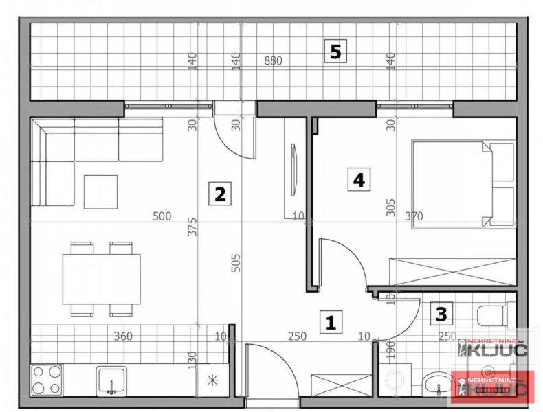
Prodaje se 2 stan u SREMSKOJ KAMENICI površine 56m2. Stan je u izgradnji. Odlično je povezan sa glavnim saobračajnicama. Cena stana sa pdv. Mogučnost kupovine putem stambenog kredita.. Vrhunski kvalitet gradnje i opreme. Stan zavređuje pažnju. Pozovite da pogledate.
| Šifra oglasa | 3780 |
| Tip | Stan |
| Ukupna cena | 135.550 € |
| Kvadratura | 56 m2 |
| Broj soba | 2 |
| Usluga | Prodaja |
| Godina izgradnje | 2025 |
| Sprat | prizemlje |
| Terasa | Da |
| Grejanje | Gas |
021 524 601
060 524 6010
060 524 6011