021 524 601
060 524 6010
Maksima Gorkog 2

Novi Sad, Sremska Kamenica
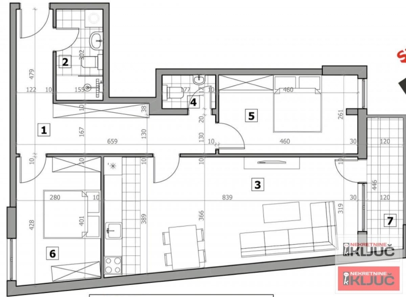
Prodaje se 3 stan u SREMSKOJ KAMENICI površine 80m2. Stan je u izgradnji. Odlično je povezan sa glavnim saobračajnicama. Cena stana sa pdv. Mogučnost kupovine putem stambenog kredita.. Vrhunski kvalitet gradnje i opreme. Stan zavređuje pažnju. Pozovite da pogledate.
| Šifra oglasa | 3784 |
| Tip | Stan |
| Ukupna cena | 181.300 € |
| Kvadratura | 80 m2 |
| Broj soba | 3 |
| Broj kupatila | 2 |
| Usluga | Prodaja |
| Godina izgradnje | 2025 |
| Sprat | 1 |
| Terasa | Da |
| Grejanje | Gas |
021 524 601
060 524 6010
060 524 6011