021 524 601
060 524 6010
Maksima Gorkog 2

Novi Sad, Novo Naselje
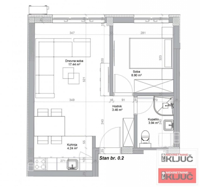
Prodaje se 1. 5 stan u NOVOM SADU, NOVO NASELJE površine 38m2. Stan je u izgradnji. Cena stana sa pdv. Mogučnost kupovine putem stambenog kredita. Vrhunski kvalitet gradnje i opeme. Nalazi se u mirnoj ulici nadomak svih potrebnih sadržaja, Škola, Vrtić, pijaca, marketi kao i ostali sadržaji. Odlično je povezan sa glavnim saobračajnicama. Stan zavređuje pažnju. Pozovite da pogledate.
| Šifra oglasa | 3724 |
| Tip | Stan |
| Ukupna cena | 105.500 € |
| Kvadratura | 38 m2 |
| Broj soba | 1.5 |
| Broj kupatila | 1 |
| Usluga | Prodaja |
| Sprat | prizemlje |
| Grejanje | Etažno |
021 524 601
060 524 6010
060 524 6011