021 524 601
060 524 6010
Maksima Gorkog 2

Novi Sad, Podbara
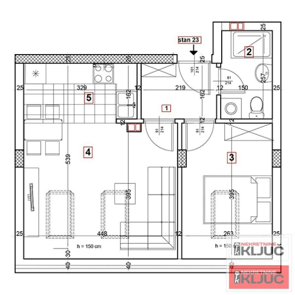
Prodaje se 1. 5 stan u NOVOM SADU, PODBARA površine 39m2. Stan je u izgradnji. Cena stana sa pdv. Mirna ulica. Svi potrebni sadržaji u blizini, škola, vrtić, megamarketi kao i ostali sadržaji. Odlična komunikacija sa glavnim saobračajnicama. Mogučnost kupovine putem stambenog krediita. Zavređuje pažnju. Pozovite da pogledate.
| Šifra oglasa | 3540 |
| Tip | Stan |
| Ukupna cena | 107.650 € |
| Kvadratura | 39 m2 |
| Broj soba | 2 |
| Broj kupatila | 1 |
| Usluga | Prodaja |
| Sprat | 5 |
| Grejanje | Etažno |
021 524 601
060 524 6010
060 524 6011