021 524 601
060 524 6010
Maksima Gorkog 2

Novi Sad, Telep
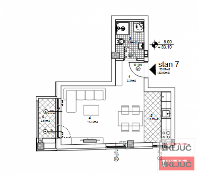
Prodaje se 1 soban stan u NOVOM SADU, TELEP površine 33m2. Cena stana sa pdv. Stan je u izgradnji. Uskro useljiv Mirna ulica u blizini glavnih saobraćajnica. Odličan kvalitet gradnje i opreme. Renomiran investitor. U ceni je i agencijska provizija. Pozovite da pogledate.
| Šifra oglasa | 3486 |
| Tip | Stan |
| Ukupna cena | 99.700 € |
| Kvadratura | 33 m2 |
| Broj soba | 1 |
| Broj kupatila | 1 |
| Usluga | Prodaja |
| Sprat | 1 |
| Terasa | Da |
| Grejanje | Etažno |
021 524 601
060 524 6010
060 524 6011