021 524 601
060 524 6010
Maksima Gorkog 2

Novi Sad, Petrovaradin
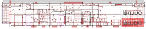
Prodaje se 4 stan u PETROVARADINU površine 95m2 plus terasa gratis. Stan je u izgradnji. Cena stana sa pdv. Manji objekat sa svega nekoliko jedinica. Mirna ulica. Odlična komunikacija sa glavnom saobraćajnicom. Stan koristi gratis terasu oko 90m2. Mogučnost kupovine putem stambenog kredita. Pozovite da pogledate.
| Šifra oglasa | 3321 |
| Tip | Stan |
| Ukupna cena | 199.000 € |
| Kvadratura | 95 m2 |
| Broj soba | 4 |
| Broj kupatila | 2 |
| Usluga | Prodaja |
| Sprat | 2 |
| Terasa | Da |
| Grejanje | Etažno |
021 524 601
060 524 6010
060 524 6011